Imóveis à venda

Casa de Condomínio com 7 dormitórios à venda (Jardim Acapulco - Guarujá)

Guarujá

Jardim Acapulco, Guarujá - São Paulo

Tipo de Imóvel: Casa
Endereço: Rua General Paulo Carneiro Thomaz Alves, 304,
CEP: 11445070
Região: Balneário Praia do Pernambuco, Guarujá, SP
Área Terrena: 1.000,00 m²

Matrícula: 67021 CRI de Guarujá.

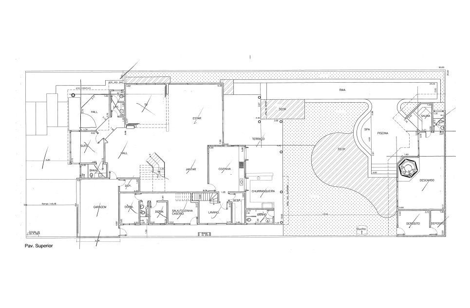
Descrição Estrutural: Residência de dois pavimentos localizado no lote n.º 27 da quadra n.º 10, no loteamento Jardim Acapulco, destinada à moradia, lazer e veraneio. Fachada em pintura látex com painéis de vidro temperado, piso externo em placas cimentícias, mosaico português e áreas gramadas. Jardins com palmeiras e cerca viva, fechamento em portas e portões de alumínio pintados.
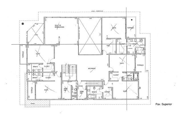
Área de lazer completa com piscina com raia, sauna, churrasqueira, depósitos e amplas áreas ajardinadas. No pavimento superior, escadaria de acesso, sala íntima em mezanino, sala de brinquedos, cinco suítes com banheiro privativo, closet e terraço, além de dois dormitórios e um banheiro de empregados.
Cadastro Municipal n.º 3.0786.019.000.


Valor de Avaliação R$ 6.800.000,00
VENDA DIRETA: R$ 2.9100.000,00


Para consultar imóveis nesta ou em outras regiões, acesse o portal: https://vidot.com.br

CONSIDERAÇÕES IMPORTANTES:


Atuamos com a intermediação de imóveis recuperados para quitação de dívidas através da alienação pela iniciativa particular, oferecendo ao comprador uma forma segura e vantajosa, seja para moradia ou investimento.

Atenção: Por estarem em fase final de regularização, não é possível agendar visitas aos imóveis. No entanto, oferecemos acesso completo a todas as informações, documentações e imagens de referência podem ser consultadas durante os atendimentos.

Nesta modalidade, o comprador receberá o imóvel desocupado, e desembaraçado de quaisquer pendências, como débitos, processos judiciais, processos administrativos e cobranças extrajudiciais.
A resolução dessas pendências é de responsabilidade do intermediador, até transmissão efetiva do bem na certidão de matrícula.

Por tratar-se de imóveis oriundos de leilões devidos dívidas, a disponibilidade do imóvel para negociação deve ser atualizada no momento do atendimento.

(Pode haver pequenas diferenças entre as características anunciadas e as reais do imóvel por exigência dos portais imobiliários. Confirme todos os detalhes conosco).

Vidot Financiamentos e Negócios Imobiliários Ltda.
CRECI: 50079-J | CNPJ: 46.551.621/0001-64
FEBRABAN: 0229470434716212 / 6225212604948861

Fale conosco:
Telefone: (11) 2680-0269
WhatsApp: (11) 2680-0269
E-mail: contato@vidot.com.br

Sobre o imóvel

  • 7
  • 7
  • 4
  • 1000 m²
Área útil
0 m²
Total de quartosInclui suíte
7
SuítesQuarto com banheiro
5
Banheiros
7
Andar
Vagas de garagemEscritura
4
IPTUIPTU do último ano
Valor do condomínioValor mensal
Código do imóvel
1721
Venda
R$ 2.910.000,00
Condomínio
Indisponível
IPTU
Indisponível
Agendar visita

Enviar uma mensagem